Il luogo dove valori aziendali e personali
si incontrano
Vogliamo raccontarvi come è nata l’idea di Casa FM: abbiamo sempre lavorato seguendo i nostri principi, scegliendo di mettere al centro le persone. I nostri valori personali sono talmente forti da essere presenti anche nella nostra impresa.
Crediamo profondamente nell’importanza di vivere gli spazi in modo equilibrato e per questo li creiamo su misura.
Le nostre ristrutturazioni sono pensate per le famiglie e rivediamo gli spazi in base alle singole esigenze.
Quando è arrivato il momento di scegliere una nuova casa per la nostra famiglia, è stato naturale voler condividere il progetto con chi ci segue.
Il modo migliore per mostrarvi come lavoriamo, è parlarvi del nostro progetto: Casa FM.
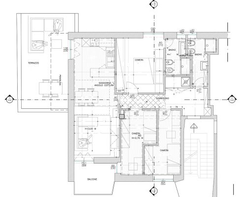
Sulla pianta è un classico appartamento degli anni ’70, con una superficie di 80 metri quadrati, una misura abbastanza standard per i quartieri residenziali di Roma. L’appartamento era composto da ingresso con corridoio, 3 camere, cucina e bagno. Noi l’abbiamo trasformato completamente, creando gli spazi necessari, in base alle esigenze della nostra famiglia. Così adesso Casa FM ha: 3 camere da letto, due bagni e un soggiorno con angolo cottura.
Seguendo il principio di creare “su misura”, abbiamo stravolto completamente gli spazi: la cucina e l’angolo cottura ora si affacciano su un bellissimo terrazzo e in futuro prevediamo di aggiungere una pergola bioclimatica dove poter pranzare in compagnia.
Riusciamo a cogliere la potenzialità di un immobile
In vent’anni, io e Massimo, abbiamo traslocato varie volte, non solo per motivi lavorativi, ma anche perché le nostre esigenze cambiavano con il tempo. Non si trattava d’irrequietezza, ma di voglia di migliorare. Abbiamo sempre seguito i nostri desideri, cercando di volta in volta gli spazi giusti dove realizzarli.
La curiosità e la voglia di sperimentare nuove possibilità, ci hanno sempre spinto ad andare avanti.
Queste caratteristiche sono anche il punto di forza della nostra impresa. Ci piace sperimentare e offrire sempre il meglio ai nostri clienti, garantendo prodotti e servizi all’avanguardia.
Circa un anno fa abbiamo acquistato un appartamento, a prima vista simile a tanti altri: vecchio di una cinquantina di anni, anonimo e privo di carattere, dove non era mai stato fatto nessun tipo di intervento. Però ci siamo subito innamorati dell’ampia area esterna, cosa non facile da trovare in un condominio.
Saremo sinceri, a prima vista, la casa era davvero bruttina. Abbiamo scelto un immobile che probabilmente in molti avrebbero scartato, ma grazie al nostro occhio tecnico e alla nostra capacità di guardare oltre, ne abbiamo colto le grandi potenzialità.
Un pizzico di rischio e la fortuna della discesa del mercato immobiliare, hanno contribuito alla scelta finale.
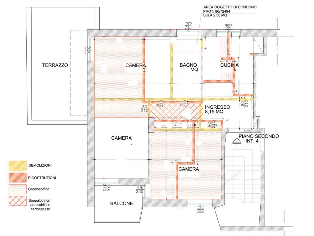
Progetto demolizioni
Progetto con arredi
I punti di forza della casa, che ci hanno convinto ad acquistarla, sono proprio quel terrazzo da 23 metri quadri circa e il bel balcone. Il problema è che entrambi erano riservati alle camere della zona notte.
Non potevamo perdere l’occasione. Avere uno spazio del genere accessibile solo dalle camere da letto avrebbe penalizzato moltissimo l’appartamento. Per questo, abbiamo deciso di invertire la classica distribuzione zona giorno e zona notte.
Abbiamo demolito praticamente tutto quello che c’era: sono poche le vecchie pareti che sono rimaste in piedi.
Noi abbiamo trasformato completamente l’appartamento e creato gli spazi necessari, in base alle nostre esigenze. Oggi, Casa FM ha: 3 camere da letto, due bagni e un soggiorno con angolo cottura.
L’ingresso rivela subito le caratteristiche di questa casa: ogni angolo è pensato per mostrarsi elegante e senza troppi fronzoli. Entrando, troviamo subito il bagno con una porta a filo muro che ne minimizza la presenza, quasi nascondendolo. Subito a fianco, altre due porte a filo muro bianche, separano alla perfezione una piccola stanza adibita a lavanderia e ripostiglio.
Crediamo nel valore di uno spazio abitativo su misura
Seguendo il principio di creare “su misura” e stravolgendo completamente gli spazi e spostando la cucina da tutt’altra parte: ora il nuovo angolo cottura si affaccia su un bellissimo terrazzo, che in futuro ospiterà una pergola bioblimatica che ci permetterà di pranzare in compagnia.
Abbiamo ricercato un ambiente il più possibile luminoso e quindi abbiamo deciso di giocare con toni chiari e neutri.
Per i pavimenti abbiamo scelto il gres di Coem in lastroni 120X60 che rendono ancora più ampi ed eleganti gli spazi.
In bagno abbiamo posato la carta da parati Tecnografica, anche dentro la doccia. Volevamo proprio testare la resistenza ad un uso estremo, e i due adolescenti di casa ci aiuteranno a verificarne la durata sotto stress. Sulle pareti del bagno, così come nel piano cottura abbiamo scelto di non usare alcun rivestimento: per proteggere le pareti e poterle pulire facilmente abbiamo usato molto smalto Sikkens.
Visto che abbiamo stravolto l’originale disposizione della zona giorno e della zona notte, abbiamo dovuto cercare un sistema decisamente innovativo per separare le parti senza perdere luminosità ed eleganza. L’opzione migliore era un grande serramento scorrevole a scomparsa e ad altezza intera. Noi lo abbiamo scelto con telaio nero antracite, in modo da creare uno stacco con il bianco delle pareti.
Casa FM: un esempio concreto da cui prendere ispirazione
La nostra azienda si chiama FM Atelier perché promuoviamo la creazione di uno spazio abitativo su misura.
Proprio come un abile sarto, mettiamo la stessa passione, precisione e ricercatezza nel realizzare la tua casa.
Per prima cosa bisogna affidarsi ad un bravo progettista in grado di ascoltarti e cogliere le tue esigenze, solo dopo sarà possibile rivedere e progettare gli interni secondo i tuoi desideri. Noi ci siamo rivolti ad architetti che, con grande professionalità e abilità, hanno trasformato le nostre idee in qualcosa di concreto.
Merita di particolare menzione l’architetto Ippolita Curto di Alima Studio Architettura, che ha curato la parte di interiore design e ci ha aiutato e supportato in questa fase così delicata.
Quando si tratta di fare una ristrutturazione completa, il nostro consiglio è di considerare sempre la possibilità di abbattere interamente le tramezzature, portando all’origine i pilastri. In questo modo avrai due vantaggi immediati:
- – Una visione più completa dell’appartamento. Riuscirai a cogliere tutto il suo potenziale e ragionare sulla divisione degli ambienti;
- – La possibilità di valutare le condizioni dei pilastri portanti. Inoltre potrai stabilire in modo più preciso i lavori di impiantistica necessari.
Casa FM non è solo la nostra futura abitazione, ma un esempio concreto di come possiamo ristrutturare un appartamento e renderlo perfetto per te e la tua famiglia.
Parla con noi
FM Atelier ti aiuta non solo per la realizzazione della casa dei tuoi sogni, ma anche nei sopralluoghi prima dell’acquisto.
Ci possiamo conoscere? Scrivici con un messaggio privato nel nostro account instagram o inviaci un’email a: Fmatelier.srl@gmail.com
